MacyHomes

ADU Floor Plans

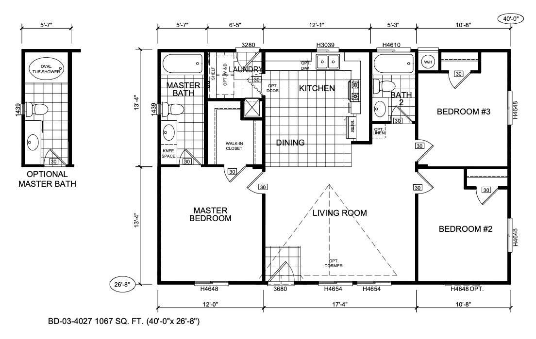
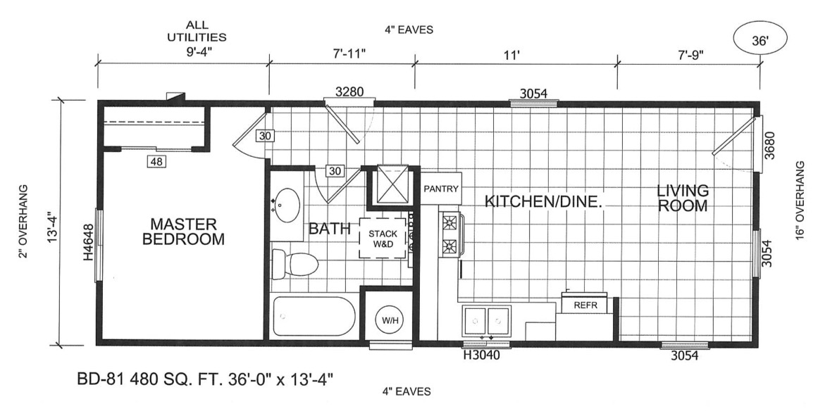
These are a few of the ADU specific floor plans available from Silvercrest and Redman Homes. There are many more to choose from and all floor plans are customizable to fit your specific needs. Walls and doors can be moved, windows can be added, rooms can be removed, the options are abundant. If you have a larger or smaller floor plan you like instead, we are able resize that plan to fit into the ADU specific size requirements.

Click to enlarge and view description.